Welcome to Trekwood RV Parts & Supply - Your one stop shop for all your camping needs!
KEYSTONE REPLACEMENT PARTS
Show/Hide Search Options
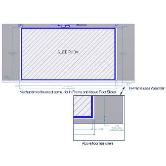
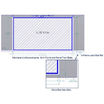
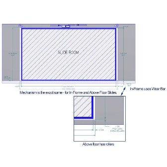
Kodiak / 2024 / Slideout & Accessories / Mechanism
Page 1 of 1
Cart / Checkout
















































































