Welcome to Trekwood RV Parts & Supply - Your one stop shop for all your camping needs!
KEYSTONE REPLACEMENT PARTS
Show/Hide Search Options
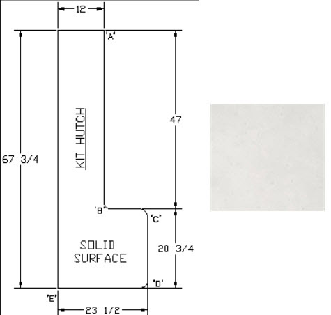
Residence / 2023 / Decor / Pressed/Solid Surface Countertop
Page 1 of 3
























Cart / Checkout































































